Unique, contemporary 1,600ft2 2BR/2.5BA apt - OTR | Apartment in Cincinnati

2 Bedroom Apartment in Over-the-Rhine, Cincinnati
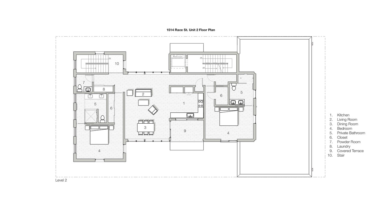
This is a 1,600 ft2 luxury apartment situated in the center of Over The Rhine ("OTR"). This award-winning building is unique - a contemporary space designed and outfitted to the highest standard, with 10' ceilings, 2 master suites, each with double vanities, private entry, deck over private patio, and 1 garage space. It has a partner apartment in building built to the same standard. These spaces are all about openness and light in a contemporary setting within OTR (note they may not be appropriate if you prefer sleeping in a darker space until later in the am :-) ). Our building spans two building lots but leaves space on each side to create an open, airy feeling with lots of light.
The location is right in the center of OTR and located right on the Cincinnati Bell Connector streetcar line. We are a little more than a block from Washington Park, which has everything from the home of the symphony orchestra and opera, the new Shakespeare Theatre to a relaxing green space, to free yoga in the park twice a week. Nice bars and restaurants are all around us, with the nightlife of Vine St. just a block away as well.
The apartment has a fully equipped kitchen and washer/dryer.
Architectural Awards
2021 - Winner - Building Architecture - Small Scale (<10,000 ft2)
The Cincinnati Design Awards (CDA) program recognizes the best built-environment design produced by Cincinnati-area creative firms and promotes the social and economic value of good design in our community. Each year, a distinguished nationwide jury of design thought leaders and eminent practitioners presents the awards to projects submitted by local architecture, interiors, landscape, and experiential graphic designers. New to this year, we will also be including community planners.
2020 - Winner - Multi-Unit Housing
The AIA Cincinnati CRANawards is a juried awards program held annually by our Custom Residential Architects Network (CRAN) to celebrate and recognize outstanding projects by residential architects working in Cincinnati.
Unique, contemporary 1,600ft2 2BR/25BA apt - OTR is located in Over-the-Rhine. Unique, contemporary 1,600ft2 2BR/25BA apt - OTR provides accommodation, featuring Air Conditioner, Child Friendly, Kitchen, among other amenities. This Apartment features Air Conditioner, Child Friendly, Kitchen, to make your stay a comfortable one.
Unique, contemporary 1,600ft2 2BR/25BA apt - OTR has 2 Bedrooms , 2 Bathrooms, and max occupancy of 4 people. The minimum rental for this property is 1 nights, but this can change depending on the season you plan on staying. Previous guests have given good rated it, and VRBO labeled it a top-rated Apartment because of the excellent services rendered by the owner or manager of this Apartment, and has consistently provided great experiences for their guests. Most families or guests that use it recommend it to their friends and some of them are repeat guests. Apartment has a friendly neighborhood, and the Over-the-Rhine has interesting places to visit. If you want to learn more about the Apartment in Over-the-Rhine, such as places to visit and things to do nearby, you can check below to learn more.
Amenities
Facility Overview
-
Heating
-
Air conditioning
-
Towels provided
-
Hair dryer
-
Shower
-
2+ bathrooms
-
2 bedrooms
-
Bed sheets provided
-
Living room
-
Coffee/tea maker
-
Cookware/dishes/utensils
-
Dishwasher
-
Ice maker
-
Refrigerator
-
Stovetop
-
Toaster
-
Microwave
-
Oven
-
Washing machine and dryer
-
Laundry facilities
-
Onsite parking options include a garage
-
Car not required
-
No pets allowed
-
Smoke-free property
-
Note from host: No smoking indoors
-
Fitness facilities nearby
-
TV
-
At least 80% lighting from LEDs
-
Water-efficient showers only
-
Water-efficient toilets only
-
Unit size: 1600 sq ft (149 sq m)
-
Energy-saving switches
-
Near a hospital
-
Iron/ironing board
-
WiFi available
-
Balcony
-
Carbon monoxide detector installed (host has indicated there is a carbon monoxide detector on the property)
-
Deadbolt lock
-
Fire extinguisher
-
Smoke detector installed (host has indicated there is a smoke detector on the property)
Policies
Extra-person charges may apply and vary depending on property policy government-issued photo identification and a credit card, debit card, or cash deposit may be required at check-in for incidental charges host has indicated there is a carbon monoxide detector on the property host has indicated there is a smoke detector on the property parties and events are allowed on site safety features at this property include a fire extinguisher and a deadbolt lock special requests are subject to availability upon check-in and may incur additional charges; special requests cannot be guaranteed this property is managed through our partner, vrbo. you will receive an email from vrbo with a link to a vrbo account, where you can change or cancel your reservation